Przeczytaj również: UPS: Jak chroni Twój sprzęt? Zasada działania i wybór
Kompleksowe planowanie instalacji elektrycznej klucz do bezpiecznego i funkcjonalnego domu
- Rozpocznij planowanie elektryki już na etapie projektu architektonicznego, angażując wykwalifikowanego elektryka.
- Podziel instalację na obwody dla bezpieczeństwa i funkcjonalności, zwłaszcza dla urządzeń o dużej mocy.
- Przemyśl rozmieszczenie punktów elektrycznych w każdym pomieszczeniu, uwzględniając ogólnie przyjęte standardy wysokości montażu.
- Zaplanuj instalację z myślą o przyszłości: przygotuj okablowanie pod fotowoltaikę, ładowarkę EV czy system Smart Home.
- Unikaj najczęstszych błędów, takich jak zbyt mała liczba gniazdek czy niewłaściwy dobór przewodów, aby zaoszczędzić czas i pieniądze.
- Przygotuj się na koszty, które dla domu 150 m² wynoszą ok. 18 000 30 000 zł, zależnie od złożoności i materiałów.
Solidny plan elektryki to fundament Twojego domu
Solidny i przemyślany projekt instalacji elektrycznej to nie tylko kwestia wygody, ale przede wszystkim bezpieczeństwa. Błędy popełnione na tym etapie mogą prowadzić do kosztownych napraw, a nawet stanowić zagrożenie pożarowe. Dlatego tak ważne jest, aby planowanie elektryki rozpocząć jak najwcześniej, najlepiej już na etapie tworzenia projektu architektonicznego domu. W tym procesie kluczowe jest zaangażowanie wykwalifikowanego elektryka lub projektanta instalacji elektrycznych. Pamiętaj, że projekt architektoniczny często zawiera jedynie podstawowe informacje dotyczące elektryki, a pełnoprawny, szczegółowy schemat instalacji powinien być dziełem specjalisty w tej dziedzinie. Tylko taki dokument zapewni zgodność z normami, funkcjonalność i bezpieczeństwo na lata.

Jak krok po kroku stworzyć funkcjonalny plan instalacji elektrycznej
Stworzenie funkcjonalnego planu instalacji elektrycznej to proces, który wymaga systematycznego podejścia. Oto kluczowe kroki, które pomogą Ci w tym zadaniu:
-
Audyt potrzeb domowników: Zanim zaczniesz cokolwiek planować, usiądź i wspólnie z domownikami stwórzcie szczegółową listę wszystkich urządzeń elektrycznych, które planujecie użytkować w każdym pomieszczeniu. Zastanówcie się nad codziennymi czynnościami, hobby i przyszłymi potrzebami. To pozwoli Wam oszacować, ile punktów elektrycznych będzie potrzebnych w każdym miejscu i jakie ich rodzaje będą najbardziej odpowiednie.
-
Zasada numer jeden: podział instalacji na obwody: To fundamentalna zasada bezpieczeństwa i funkcjonalności. Instalacja elektryczna powinna być podzielona na oddzielne obwody dla oświetlenia, gniazdek w poszczególnych pomieszczeniach, a przede wszystkim dla urządzeń o dużej mocy, takich jak płyta indukcyjna, piekarnik, pralka czy zmywarka. Taki podział zapobiega przeciążeniom sieci i minimalizuje ryzyko awarii całej instalacji w przypadku usterki jednego urządzenia. W przypadku problemów, będziesz mógł odłączyć tylko jeden obwód, a nie całe zasilanie domu.
-
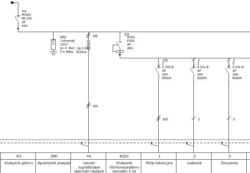
Jak czytać schemat instalacji: Profesjonalny projekt instalacji elektrycznej zawiera szereg symboli, które mogą wydawać się skomplikowane. Jednak zrozumienie podstawowych zasad ich odczytywania jest kluczowe. Schemat pokazuje rozmieszczenie wszystkich elementów instalacji: przewodów, puszek instalacyjnych, gniazdek, włączników i punktów oświetleniowych. Pozwala to na wizualizację całego systemu i upewnienie się, że projekt jest zgodny z Waszymi oczekiwaniami i potrzebami. Warto poprosić elektryka o omówienie kluczowych elementów schematu.
- Wybór fachowca: Wybór odpowiedniego elektryka lub projektanta instalacji to jeden z najważniejszych kroków. Szukaj osób z odpowiednimi uprawnieniami SEP, doświadczeniem i dobrymi referencjami. Nie kieruj się wyłącznie najniższą ceną. Zapytaj o portfolio, poproś o przedstawienie kilku przykładowych projektów i upewnij się, że projektant rozumie Wasze potrzeby i potrafi doradzić najlepsze rozwiązania. Dobry fachowiec to gwarancja bezpieczeństwa i funkcjonalności instalacji na lata.
Praktyczny przewodnik po rozmieszczeniu punktów elektrycznych w każdym pomieszczeniu
Prawidłowe rozmieszczenie punktów elektrycznych jest kluczowe dla wygody i funkcjonalności każdego domu. Chociaż szczegółowe normy dotyczące wysokości montażu nie są ściśle określone, istnieją ogólnie przyjęte standardy, które warto stosować. Zazwyczaj włączniki światła montuje się na wysokości około 110-120 cm od podłogi, co zapewnia komfortowy dostęp dla większości osób. Standardowe gniazdka ogólnego użytku umieszcza się na wysokości około 30 cm od podłogi, co ułatwia podłączanie urządzeń i odkurzanie. W kuchni, nad blatem roboczym, gniazdka montuje się zazwyczaj na wysokości około 110-120 cm, co jest wygodne dla małych AGD.
Kuchnia serce domu, które wymaga najwięcej mocy
Kuchnia to pomieszczenie o szczególnym zapotrzebowaniu na energię elektryczną, dlatego jej instalacja wymaga starannego planowania.
-
Ile gniazdek nad blatem? Zaplanuj odpowiednią liczbę gniazdek nad blatem roboczym, uwzględniając nie tylko małe AGD, takie jak toster czy ekspres do kawy, ale także przyszłe potrzeby. Dobrym pomysłem jest zainstalowanie kilku gniazdek rozmieszczonych wzdłuż blatu, aby uniknąć sytuacji, w której wszystkie są zajęte. Pamiętaj też o gniazdkach dla urządzeń AGD do zabudowy.
-
Osobne obwody dla indukcji i piekarnika: Płyta indukcyjna i piekarnik to urządzenia o bardzo dużym poborze mocy. Konieczne jest zaplanowanie dla nich oddzielnych, dedykowanych obwodów elektrycznych z odpowiednio dobranym zabezpieczeniem i przekrojem przewodów. Zapobiega to przeciążeniom i zapewnia bezpieczne użytkowanie.
-
Oświetlenie centralne, podszafkowe i dekoracyjne: W kuchni warto zaplanować kilka warstw oświetlenia. Oprócz głównego światła sufitowego, kluczowe jest oświetlenie podszafkowe, które doskonale doświetla blat roboczy. Można również pomyśleć o dodatkowym oświetleniu dekoracyjnym, na przykład w przeszklonych szafkach.
Salon i sypialnia strefy relaksu i multimediów
W salonie i sypialni, gdzie często korzystamy z urządzeń elektronicznych i lamp, kluczowe jest rozmieszczenie gniazdek i włączników zapewniające komfort.
-
Planowanie gniazdek RTV: W salonie zaplanuj odpowiednią liczbę gniazdek w pobliżu miejsca, gdzie stanie telewizor, konsola do gier czy sprzęt audio. Warto przewidzieć również gniazdko do zasilania anteny lub dekodera.
-
Włączniki schodowe i krzyżowe: Aby zwiększyć komfort użytkowania oświetlenia, warto rozważyć zastosowanie włączników schodowych i krzyżowych. Włączniki schodowe pozwalają na włączanie i wyłączanie światła z dwóch różnych miejsc (np. na dole i na górze schodów), a włączniki krzyżowe z trzech lub więcej miejsc. To szczególnie przydatne w domach wielopoziomowych lub w długich korytarzach.
-
Gniazdka przy łóżku i biurku: W sypialni standardem jest zaplanowanie gniazdek po obu stronach łóżka, aby umożliwić ładowanie telefonu, podłączenie lampki nocnej czy czytnika e-booków. Podobnie, przy biurku warto zaplanować kilka gniazdek do zasilania komputera, lampki biurkowej i innych akcesoriów.
Łazienka gdzie bezpieczeństwo spotyka się z funkcjonalnością
Łazienka to pomieszczenie o podwyższonej wilgotności, dlatego planowanie instalacji elektrycznej wymaga szczególnej uwagi na bezpieczeństwo.
-
Strefy ochronne w łazience: W łazienkach obowiązują tzw. strefy ochronne, które określają, gdzie można, a gdzie nie wolno montować urządzenia elektryczne, w tym gniazdka. Ogólna zasada mówi, że im bliżej źródła wody (prysznic, wanna, umywalka), tym bardziej restrykcyjne są wymogi dotyczące ochrony. Nigdy nie montuj gniazdek w bezpośrednim sąsiedztwie wanny czy prysznica. Warto skonsultować dokładne rozmieszczenie z elektrykiem.
-
Gniazdka do pralki, suszarki i drobnych urządzeń: Zaplanuj dedykowane gniazdka dla pralki i suszarki, najlepiej zlokalizowane w pobliżu tych urządzeń. Warto również przewidzieć gniazdko dla golarki elektrycznej czy suszarki do włosów, umieszczone w bezpiecznej odległości od stref mokrych.
-
Oświetlenie główne, lustra i strefy kąpielowej: Oprócz głównego oświetlenia sufitowego, w łazience często stosuje się oświetlenie lustra, które zapewnia dobre warunki do codziennej higieny. Można również rozważyć dodatkowe oświetlenie w strefie kąpielowej, na przykład w postaci kinkietów czy taśm LED.
Garaż, kotłownia i ogród elektryka na zewnątrz budynku
Pomieszczenia gospodarcze i tereny zewnętrzne również wymagają odpowiedniego zaplanowania instalacji elektrycznej.
-
Gniazda siłowe (trójfazowe): W garażu lub kotłowni mogą być potrzebne gniazda siłowe (trójfazowe) do zasilania urządzeń o większej mocy, takich jak spawarka, kompresor czy niektóre rodzaje pieców. Warto przewidzieć ich montaż, jeśli istnieje taka potrzeba.
-
Zasilanie bramy wjazdowej, oświetlenia zewnętrznego i systemu nawadniania: Już na etapie projektu elektryki należy zaplanować zasilanie dla automatycznej bramy wjazdowej, oświetlenia ogrodu, a także ewentualnego systemu nawadniania. Poprowadzenie odpowiednich przewodów w ziemi ułatwi późniejszy montaż tych elementów.

Instalacja elektryczna z wizją przyszłości: o czym pomyśleć już dziś
Nowoczesne planowanie instalacji elektrycznej to nie tylko zaspokojenie obecnych potrzeb, ale przede wszystkim przygotowanie domu na przyszłe technologie i zmiany. Inwestycja w odpowiednie okablowanie dzisiaj, może zaoszczędzić nam wielu problemów i kosztów w przyszłości.
-
Fotowoltaika na dachu: Jeśli planujesz w przyszłości zainstalować panele fotowoltaiczne, już teraz warto przygotować odpowiednie okablowanie i miejsce na inwerter. Należy przewidzieć miejsce na montaż falownika oraz doprowadzić odpowiednie przewody z dachu do tego miejsca. Nawet jeśli nie zdecydujesz się na fotowoltaikę od razu, takie przygotowanie nie zaszkodzi, a ułatwi przyszłą modernizację.
-
Samochód elektryczny w garażu: W związku z rosnącą popularnością samochodów elektrycznych, warto już dziś pomyśleć o przygotowaniu instalacji pod montaż ładowarki EV w garażu. Oznacza to zaplanowanie osobnego obwodu z zabezpieczeniem o odpowiedniej mocy i zastosowanie przewodów o właściwym przekroju. Nawet jeśli nie posiadasz jeszcze samochodu elektrycznego, takie przygotowanie może być kluczowe w przyszłości.
-
Inteligentny dom (Smart Home): Systemy inteligentnego domu oferują ogromne możliwości w zakresie automatyzacji i sterowania budynkiem. Jeśli myślisz o wdrożeniu takiego systemu, należy to uwzględnić już na etapie projektu. Systemy przewodowe wymagają doprowadzenia skrętki komputerowej i przewodu magistralnego do puszek instalacyjnych, co wymaga głębszych puszek i starannego planowania. Systemy bezprzewodowe są łatwiejsze w instalacji, ale warto pamiętać o zapewnieniu odpowiedniego zasięgu sieci Wi-Fi w całym domu.
-
Instalacja alarmowa, monitoring i sieć LAN: Planując instalację elektryczną, warto również przewidzieć okablowanie pod system alarmowy, monitoring wizyjny czy sieć lokalną (LAN). Nawet jeśli nie zdecydujesz się na te systemy od razu, poprowadzenie dodatkowych peszli w strategicznych miejscach pozwoli na łatwe dołożenie przewodów w przyszłości, bez konieczności kucia ścian.
Najczęstsze błędy w instalacji elektrycznej i jak ich uniknąć
Nawet najlepiej zaplanowana instalacja może okazać się niewystarczająca lub niebezpieczna, jeśli popełnimy podstawowe błędy. Oto najczęściej spotykane pułapki, których warto unikać:
-
Zbyt mała liczba gniazdek: To jeden z najczęstszych błędów. W dzisiejszych czasach posiadamy coraz więcej urządzeń elektrycznych, a liczba punktów zasilania często okazuje się niewystarczająca. Zawsze lepiej zaplanować więcej gniazdek, niż później martwić się o przedłużacze i rozgałęźniki. Niedostateczna liczba punktów zasilania to nie tylko niedogodność, ale także ryzyko przeciążenia istniejących obwodów.
-
Brak wydzielonych obwodów dla sprzętów o dużej mocy: Podłączanie urządzeń o dużym poborze mocy, takich jak płyta indukcyjna, piekarnik, pralka czy zmywarka, do wspólnego obwodu z innymi urządzeniami jest bardzo ryzykowne. Może to prowadzić do przeciążeń, uszkodzenia urządzeń, a nawet pożaru. Każde z tych urządzeń powinno mieć swój własny, dedykowany obwód.
-
Niewłaściwy dobór przekroju przewodów: Jest to tzw. "cichy wróg" instalacji. Zbyt cienkie przewody mogą się przegrzewać, co prowadzi do uszkodzenia izolacji, zwarcia, a w skrajnych przypadkach do pożaru. Przekrój przewodów musi być ściśle dopasowany do mocy podłączanych urządzeń i długości obwodu. Tego typu decyzje powinien podejmować projektant.
-
Oszczędność na jakości materiałów i rozdzielnicy: Oszczędzanie na jakości przewodów, puszek, gniazdek czy przede wszystkim na rozdzielnicy to pozorna oszczędność. Tanie, niskiej jakości materiały szybciej się zużywają, są mniej bezpieczne i mogą prowadzić do awarii. Rozdzielnica jest sercem instalacji elektrycznej i powinna być wykonana z materiałów wysokiej jakości, zapewniających niezawodność i bezpieczeństwo.
Ile kosztuje instalacja elektryczna w 2025 roku
Koszty instalacji elektrycznej mogą znacząco się różnić w zależności od wielu czynników, jednak warto mieć pewne rozeznanie, aby odpowiednio zaplanować budżet.
- Co to jest "punkt elektryczny" i co składa się na jego cenę? Pojęcie "punktu elektrycznego" jest często używane przez wykonawców do określenia ceny. Zazwyczaj obejmuje on jedną robotę wraz z materiałem, np. jedno gniazdko, jeden włącznik, jedno punkt oświetleniowy. Cena za punkt elektryczny zawiera robociznę elektryka oraz koszt materiałów, takich jak przewody, puszki, gniazdka, włączniki.
-
Przykładowy kosztorys dla domu 150 m²: Szacunkowy koszt wykonania standardowej instalacji elektrycznej w domu o powierzchni 150 m² w 2025 roku waha się zazwyczaj od 18 000 do 30 000 zł. Ostateczna cena zależy od wielu czynników, takich jak region Polski (ceny robocizny są wyższe w większych miastach), stopień skomplikowania instalacji (np. ilość obwodów, zastosowane rozwiązania), jakość użytych materiałów oraz indywidualne ustalenia z wykonawcą. Cena za punkt elektryczny wynosi średnio od 100 do 200 zł.
-
Biały montaż czyli finalny etap prac elektrycznych: Biały montaż to ostatni etap prac związanych z instalacją elektryczną. Polega on na montażu widocznych elementów, takich jak gniazdka, włączniki, ramki oraz opraw oświetleniowych. Jest to etap, który nadaje instalacji estetyczny wygląd i sprawia, że staje się ona w pełni funkcjonalna.






